Modular house – L
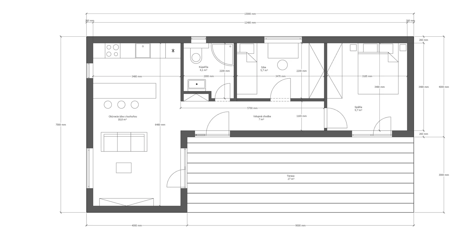
L-shaped modular houses feature two wings set at a right angle, creating a distinctive and practical design.
This layout gives architects and homeowners more flexibility in shaping the floor plan and interior spaces.
One wing typically houses the living spaces – a bright living room, kitchen, and dining area – while the other wing is reserved for privacy, with bedrooms, a study, or guest rooms.
This layout naturally divides day and night zones, providing maximum comfort and privacy for the whole family.
Scope of delivery
The delivery includes the following items:
Tailor-made delivery designed to meet the customer’s specifications
Modules assembled into a complete, fully functional modular building
Professional inspection and electrical equipment test report
Certificates for all used materials
Declaration of conformity
Product quality and warranty confirmation / 24-month warranty from the date of handover
The delivery does not include the following items:
External utility connections / sewage, water, electricity / – including electrical project supply
Fire safety project supply
Building grounding
Foundation preparation for installation
Transport to the final location
Vehicle loading
On-site unloading and crane operations for building assembly
Technical parameters
Modular structure
- Robust welded frame made from closed steel profiles, 3 mm wall thickness.
- Welding and inspections certified to ISO 9001:2000 and STN EN ISO 3834-2 standards.
- All metal components are protected with a two-layer zinc-phosphate anti-corrosion primer.
- Visible metal surfaces are finished with a high-quality alkyd topcoat for durability and aesthetics.
Floor structure
- Guttafol ALU vapor barrier for optimal moisture protection
- Shaped T8 galvanized sheet metal
- EPX 70 graphite insulation (80mm)
- 15mm OSB3 chipboard
- 15mm Fermacell board
- WARMUP underfloor heating with touch thermostat for comfort
- Baseboard and accessories
- Self-levelling compound
- Ceramic tiles or laminate flooring
Ceiling structure
- UD ceiling profile for frame support
- CD ceiling profile for secure installation
- Guttafol ALU vapor barrier for moisture protection
- Knauf Diamant X 12.5mm gypsum board
- Plastering and base white paint finish
- 15mm OSB3 chipboard for added stability
Roof structure and waterproofing system
- C24 timber frame 120×45 for strong roof support
- 15mm OSB3 chipboard
- Anthracite AL parapet flashing, 0.8mm
- Fatrafol 810V waterproof membrane 1.5mm
- 300g/m² geotextile layer for protection
- 120mm Isover Unirol Profi insulation
- KJG downpipes and gutters for efficient drainage
External wall structure
- 100mm Slovizol insulation with 2mm plaster finish
- 15mm OSB / Fermacell boards
- Jutadach 135 breathable vapor barrier
- 120mm Isover Unirol Profi mineral wool insulation
- C24 timber framing 120×45 for structural support
- Guttafol ALU vapor barrier for moisture protection
- 12.5mm Knauf Diamant X gypsum board
- Plastering and base coat white paint finish
Partition walls / non-structural walls
- 12.5mm Knauf Diamant X gypsum board
- Plastering and base coat white paint finish
- C24 timber framing 90×45 for partitions
- 100mm Isover Unirol Profi mineral wool insulation
Plumbing services
- Waste pipe installation
- Water supply pipe installation
- 180L water heater / selected option
- Pre-installed plumbing for kitchen unit
- Washbasin with faucet / chosen option
- Geberit wall-hung toilet
Door and window infills
- Main entrance door 1300 x 2200 mm
- Tilt-and-turn balcony doors 2500 x 2300 mm
- Tilt window 1200 x 600 mm
- Tilt-and-turn balcony door 900 x 2300 mm
Interior doors with trim frame
- Interior doors 90 cm
- Interior doors 70 cm

Electrical installation services
Electrical wiring is done with CYKY cables, fully embedded within the walls.
The distribution board comes with a residual-current device for safety.
Sockets and appliances are protected with 16 A breakers, lighting circuits with 10 A breakers.
Low-voltage wiring is pre-installed in conduits, and after consulting with suppliers, the cables are connected for a complete, ready-to-use system.
Price
Every project is unique, tailored to your needs and requirements, so pricing varies.
The final cost depends on the size and features of your building.





